
FAZ Frankenallee
Neubau zweier Mehrfamilienwohnhäuser in Holzmassivbauweise mit insgesamt 43 Wohneinheiten und gemeinsamer Tiefgarage.
| Standort: | Frankfurt am Main |
| Bauherr: | Frankfurter Allgemeine Zeitung GmbH |
| Typologie: | Wohnungsbau |
| BGF: | 4.500m² |
| Wohneinheiten: | 43 |
| Zeitraum: | 2019-2023 |
| Vergabeform: | Wettbewerb |
| Bauleitung: | blumenstein +architekten GmbH |
| Leistungsphasen: | 1-9 |
Die Frankfurter Allgemeine Zeitung GmbH beabsichtigt, in der Frankenallee anstelle von zwei in die Jahre gekommenen Bürohäusern Wohnungsbau in Holzbauweise zu errichten. Das Projekt besteht aus einem sechsgeschossigen Vorderhaus, das die geschlossene Blockrandbebauung aufnimmt, sowie einem dreigeschossigen Hinterhaus. Dazwischen liegt ein begrünter Innenhof. Das gesamte Grundstück ist bis zur Bauflucht mit einem Keller unterbaut, in dem sich eine Tiefgarage mit 20 Stellplätzen sowie Abstell- und Technikräume befinden.
Das Vorderhaus enthält 28 Mietwohnungen von zwei bis vier Zimmern. Im Hinterhaus befinden sich 15 Kleinwohnungen.
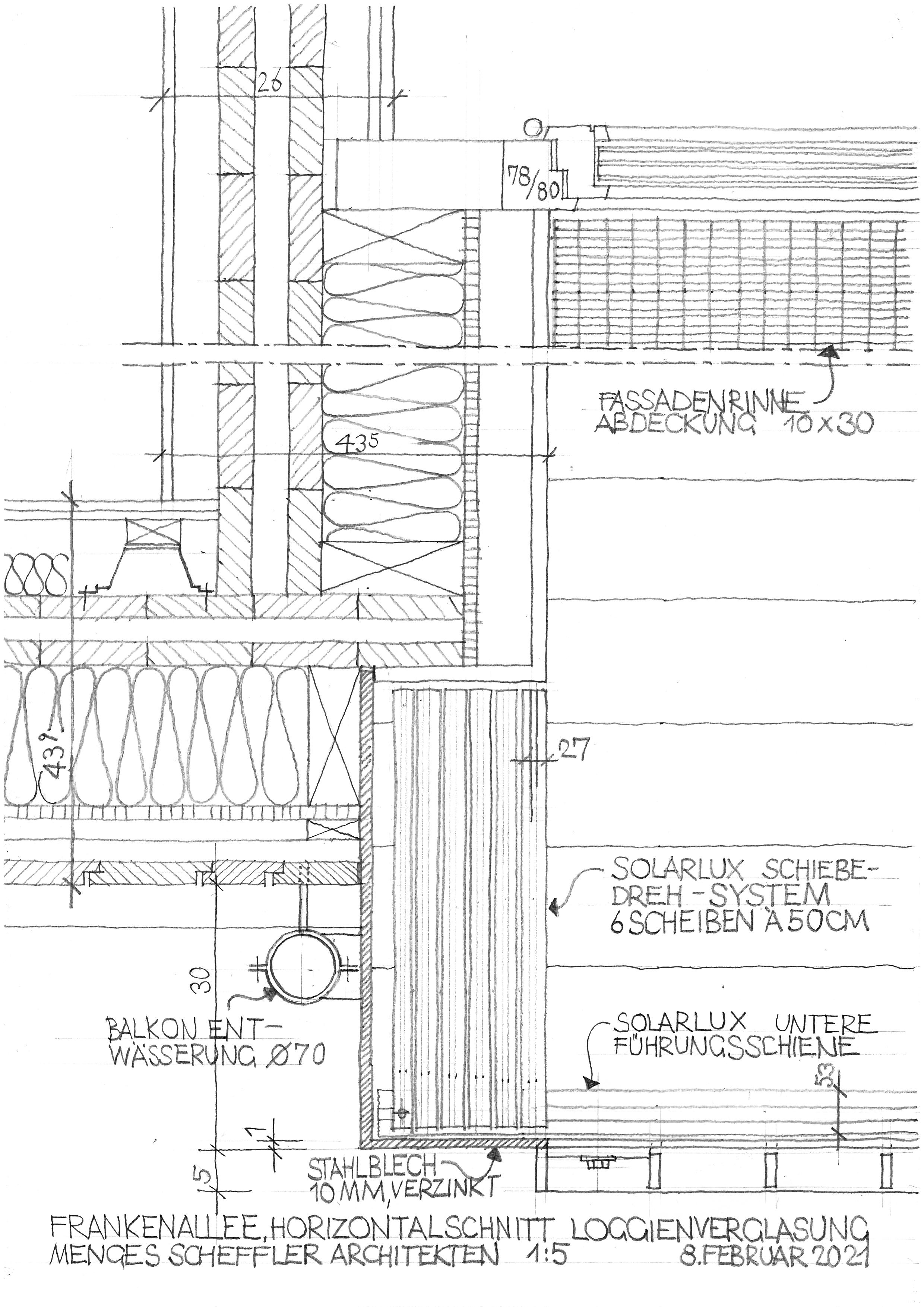
Beide Häuser werden aus Brettsperrholz in Massivholzbauweise errichtet. Das Untergeschoss, der Treppenhauskern sowie alle Brandwände werden konventionell gemauert bzw. betoniert. Die Fassaden bestehen zum größten Teil aus einer hinterlüfteten senkrechten Holzschalung. Die restlichen Flächen erhalten den ortsüblichen hellen Putz. Aus Lärmschutzgründen können die Loggien zur Frankenallee mit Schiebeglaselementen geschlossen werden.
Das schreibt die Presse:
“Mach’s gut, altes Haus” FAZ vom 7. Dezember 2020